
業務用厨房機器 ★ おすすめ商品
大Ф165×2 小Ф95×2
★H800仕様

熱機器やステンレス製品を中心に4,000アイテムを超える豊富な製品ラインナップ
1957年創業のマルゼンは、高い耐久性と使いやすさが特徴。厨房の設計、製造、販売、施工、アフターサービスまでを自社で一貫して手掛ける「ワンストップ体制」。外食産業に強く、飲食店や施設の多様なニーズに対応する「トータルキッチンプランナー」としての信頼性の高い厨房機器製品を提供しています。
売上の約70%を占める高いオーダーメイド対応力と高品質なステンレス加工技術
1946年創業のタニコーは、業務用厨房機器の総合メーカーとして高い耐久性と省エネ性能を備えた製品を提供。お客様視点の製品開発、充実したメンテナンス体制、多様な厨房機器を揃える総合力で、飲食店から給食施設まで幅広くサポートします。
加熱調理機器に特化した専門メーカーとして培った高い技術力
1920年創業のコメットカトウは、100年以上の歴史を持つ加熱機器専門メーカーならではの技術力と、開発・製造・メンテを自社で一貫する「ワンストップ体制」。特にスチームコンベクションオーブンやレンジなどの加熱機器は、熱の循環、操作性、耐久性に優れ、現場のニーズに合わせた高品質なカスタマイズ製品を提供しています。
加熱機器を設置する場合は「設置・工事説明書」をよく読み、消防法、火災予防条例、その他の条例、及び、一般財団法人日本ガス機器検査協会発行の「業務用ガス機器の設置基準及び実務方針」に基づき、正しく安全に設置してください。
一酸化炭素中毒事故をおこさないため必ず換気をしてください。
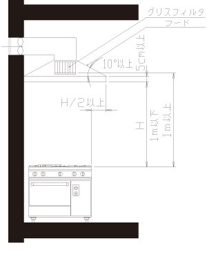
機器上部には換気上有効な排気フードを取り付け、排気フードの排気口に換気扇などの動力を設けてください。油煙や油脂の含まれた蒸気を発生させる機器には、グリス除去装置付の排気フードを設けてください。また、機器設置室には給気口を必ず設け、換気扇や排気ダクトのファンを必ず作動させてください。排気フードはこまめに掃除してください。
K:理論燃焼ガス量(0.93㎥/kWh) Q:ガス消費量(kW)
排気フードⅠ型とは、理論燃焼ガス量の30倍とすることができる排気フードをいう。排気吸引がフードの中央部で上方に行われるもの、側方に換気扇などを取り付け排気の吸引を行う深さの十分ある排気フードなどで、燃焼排ガスを含む熱上昇気流をほぼ一様に捕集できる形状を有していること。
排気フード 型風量V=30KQ
K:理論燃焼ガス量(0.93㎥/kWh) Q:ガス消費量(kW)

理論燃焼ガス量の20倍とすることができる排気フードをいう。
排気フードⅡ型風量V=20KQ
K:理論燃焼ガス量(0.93㎥/kWh) Q:ガス消費量(kW)

スチームコンベクションオーブンはドア開放時に大量の熱気・蒸気を放出します。右図のように、前面は本体より500mm以上、左側面は本体より200mm以上、右側面は本体より100mm以上のフードの設置をおすすめいたします。

ガス機器を設置する際は、周囲の壁・柱・天井・床が不燃構造であることを確認のうえ、設置してください。万一、可燃構造壁へ設置する場合は下記の点を必ずご確認・順守ください。
JIA認証マーク付の製品(一般財団法人日本ガス機器検査協会の形式認証機器)につきましては、側面20cm以上※1、背面25cm以上、上面100cm以上の離隔距離を確保すれば可燃構造壁に設置可能です。
※1両面タイプはお問い合せください。

マーク付の製品(一般財団法人日本ガス機器検査協会の形式認証機器)につきましては、側面20cm以上、背面15cm以上、上面100cm以上の離隔距離を確保すれば可燃構造壁に設置可能です。

マークのない製品は、可燃構造壁に設置できません。適切な給排気設備がある不燃構造の場所に設置してください。
「建設省(現国土交通省)告示第1400号(平成12年)(不燃材料を定める件/平成16年9月29日国土交通省告示第1178号にて改正)」により定められた材料で造られた壁、ということになります。下記の材料を下地と仕上げ両方に用いて造られた壁をいいます。
木材やプラスチック等です。上記の不燃材以外はすべてとご認識ください。仕上げ(表面)は不燃材でも、下地が可燃物であれば可燃構造壁となります。また、下地が不明な場合も可燃構造壁扱いとなります。
可燃構造壁の例
(仕上げは不燃材で、下地が可燃物)
